Skip to main content
File #: 18-203    Version: 1 Name: Staff Update on Police Building and South Offices Modifications
Type: Staff Report Status: Filed
In control: Facilities & Transportation Committee
Meeting Date: 5/2/2018 Final action: 5/2/2018
Enactment date: Enactment #:
Title: Staff Update on the Police Building and South Offices Modifications Project, Project No. 2014.0481
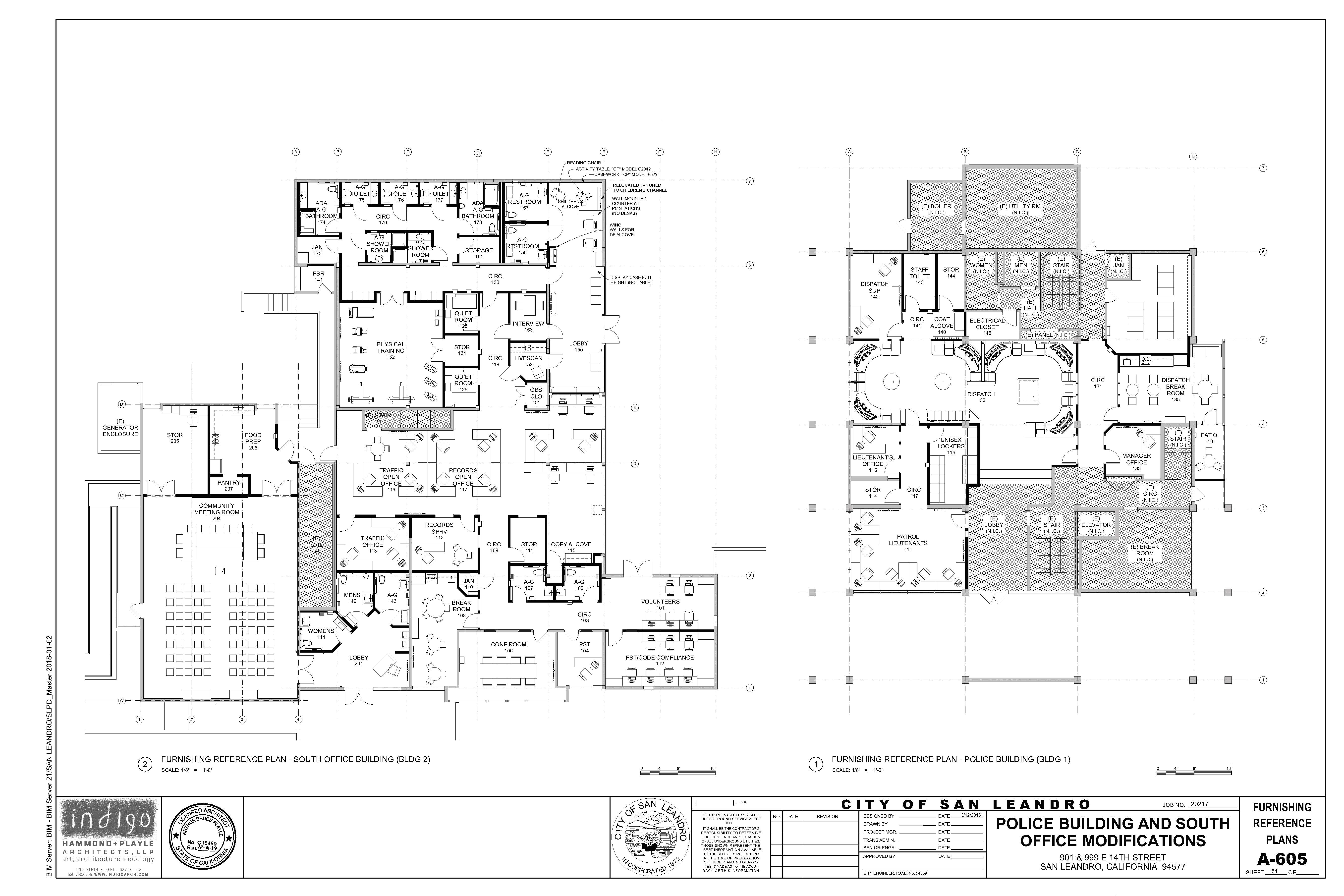
Attachments: 1. Proposed Floor Plan - 100% Design

Title

Staff Update on the Police Building and South Offices Modifications Project, Project No. 2014.0481

 

Staffreport

SUMMARY AND RECOMMENDATIONS

 

Staff will update the Committee on the plans, schedule and budget for the Police Building and South Offices Modifications Project.  Discussion items will include signage for the Surlene Grant meeting room and potential cost overruns.

 

BACKGROUND

 

The Police Building and South Offices Modifications Project will move non-essential services staff to the South Offices Building to allow for the expansion and relocation of the San Leandro Police Dispatch as well as other tenant improvements on the first floor of the Public Safety Building.  The design scope of work also includes the preparation of plans, specifications and estimates for the conversion of the theater area in the South Offices Building into a community meeting room.

 

Attachments

                     Proposed Floor Plans - 100% Design

 

PREPARED BY:  Kyle K. Lei, Associate Engineer, Engineering and Transportation Department